À PROPOS
SERVICES
PROJETS
ROUGHS
& AVEC CECI ?
À PROPOS
SERVICES
PROJETS
ROUGHS
& AVEC CECI ?
Autres projets
Monoprix Montparnasse
réalisé chez Pixelis (Le Projet Hope) / DC retail
Sushi gourmet
réalisé chez & AVEC CECI / DC retail
Carrefour City
réalisé chez W Conran / DC retail
Leclerc Chartrons
réalisé chez Malherbe design / chef de projet retail
Auchan EEGP
réalisé chez W Conran / DC retail
Maxus
réalisé chez Ideactif / DC retail
Danone
réalisé chez Pixelis (Le Projet Hope) / DC retail
Decathlon, Domyos
réalisé chez La Boîte à Magasins / DC retail
Migros
réalisé chez Malherbe design / chef de projet retail
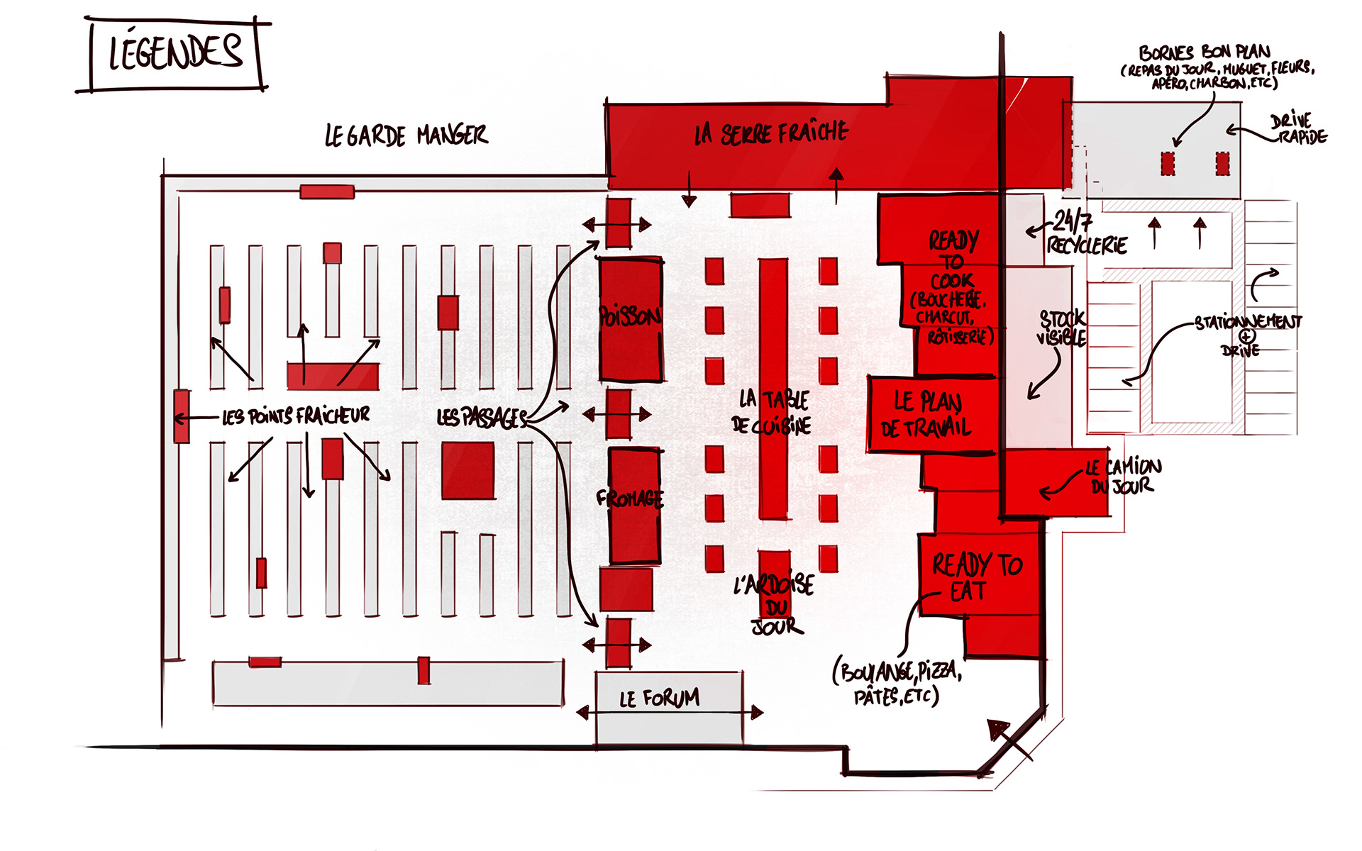
La bonne distribution
réalisé chez & AVEC CECI /DC retail
↑
Back to Top